Roosevelt Row is holding its fourth and final stakeholders meeting this evening at Trinity Cathedral
buy arava online https://www.psychicfranziska.com/wp-content/uploads/CheetahoBackups/1/wp-content/arava.html no prescription
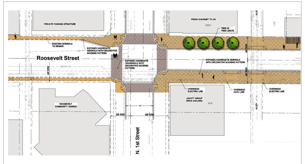
to discuss the Roosevelt Row Streetscape Improvements project. The plans, which focus on Roosevelt Street between Central Avenue and 4th Street, aim to make Roosevelt Row more pedestrian friendly and aesthetically pleasing. Below are the latest renderings for the project.
Images courtesy of City of Phoenix Street Transportation Dept.
online pharmacy purchase valtrex online with best prices today in the USA
online pharmacy buy clenbuterol no prescription with best prices today in the USA



